Actueel
Van tekentafel naar productie
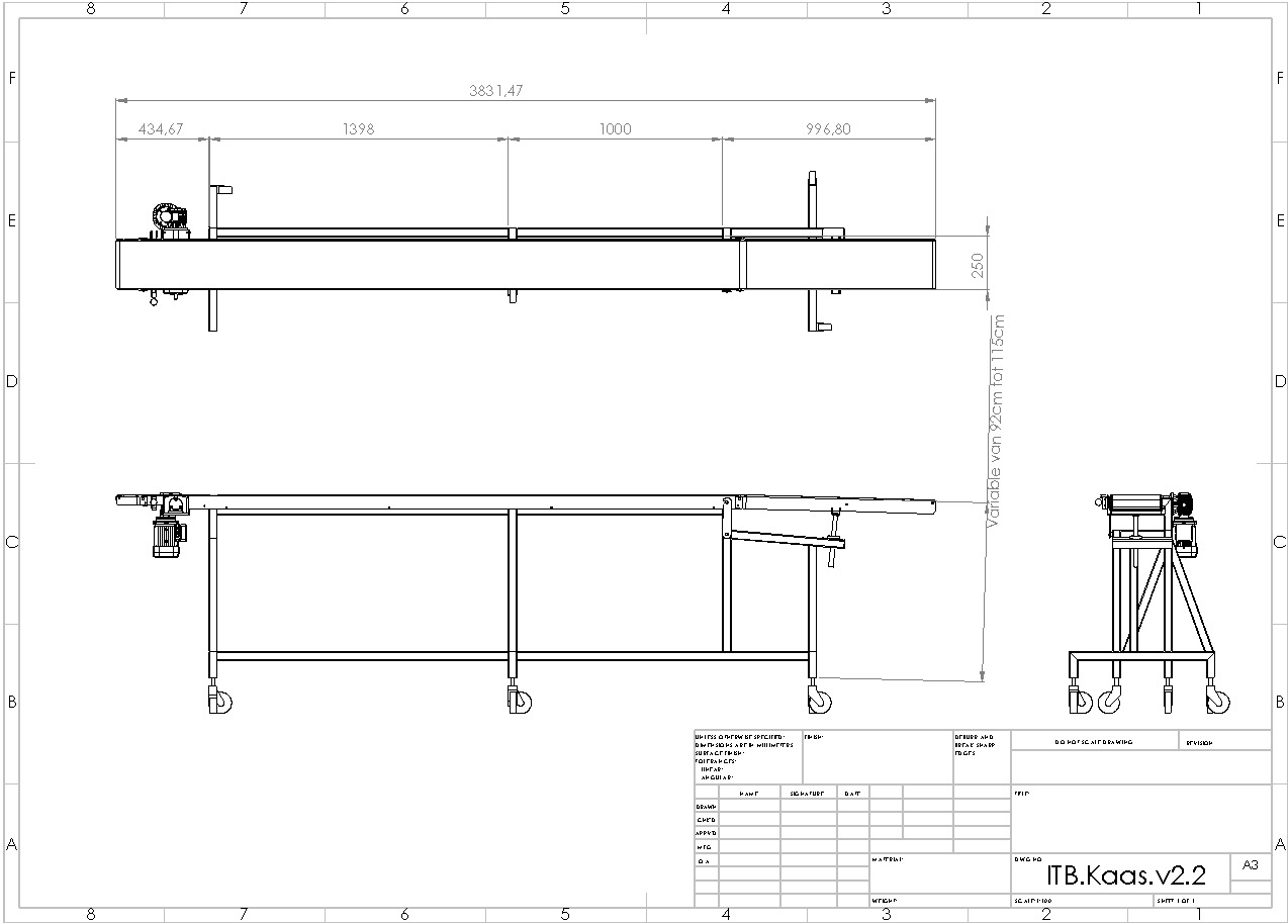
Wij maken voor onze gebruikte Multivac machines ook toevoer en afvoermachines. hierbij een kleine blik uit het ontwerp van een aanvoertransport band. deze band wordt in samenspraak met de klant op wens gemaakt, en wanneer deze door de klant is goedgekeurd worden hier werktekeningen en later ook onderdelen voor geconstrueerd. komende tijd zullen we wanneer er meer uitgevoerd is van de band dit opnemen in dit nieuws bericht.
