Real
Nueva construcción MK Tooling
Sentarse en silencio no está en los genes de Machines Kennes fuera del desarrollo diario en MK Gilze, también hay un buen desarrollo en nuestra empresa filial MK Tooling
Grandes noticias (www.mktooling.nl)
En diciembre de 2018 se otorgó un Go para expandir MK Tooling.
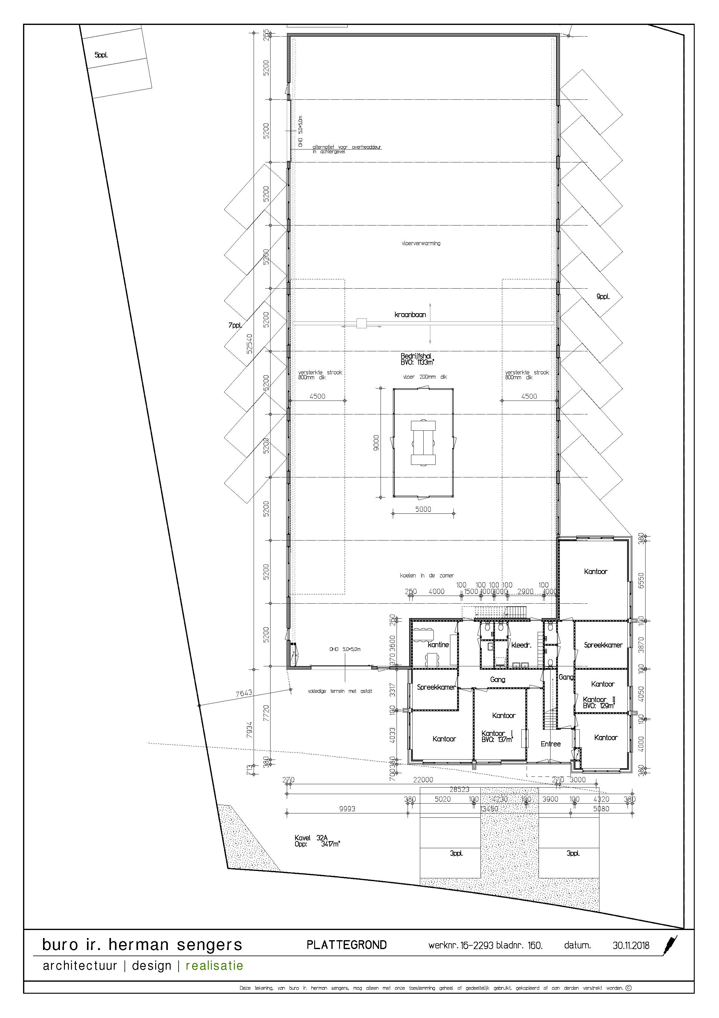
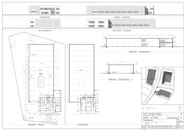
Además del hecho de que se está agregando una nueva máquina hermosa a nuestro parque de máquinas, también habrá un nuevo edificio completo. Este nuevo edificio se creará más cerca de MK Gilze. Esto facilita tener líneas cortas entre la sala de señalización de MK Gilze y los centros de mecanizado de MK Tooling. Este nuevo edificio tendrá que completarse alrededor del verano de 2019.
A continuación puede ver los primeros dibujos del nuevo edificio. A través de nuestro sitio web y canales de redes sociales como Facebook y LinkedIn, mantendremos a todos los interesados en él al día.
