Réel
Nouvelle construction MK Tooling
Assis tranquillement n'est pas dans les gènes de Machines Kennes en dehors du développement quotidien chez MK Gilze, il y a aussi un bon développement dans notre société fille MK Tooling
Bonnes nouvelles (www.mktooling.nl)
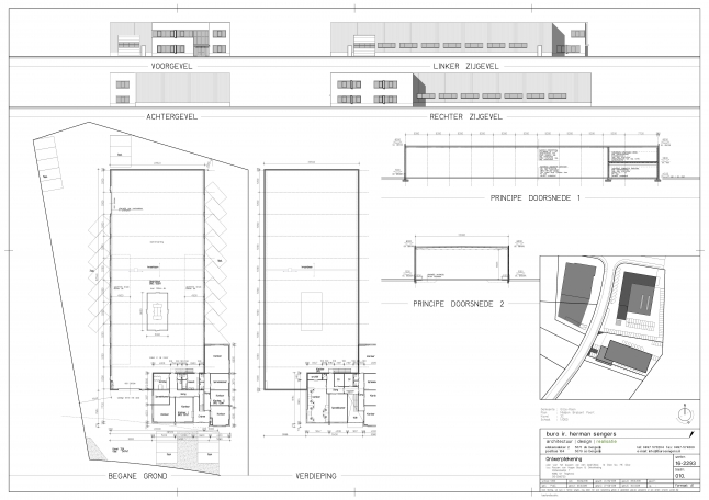
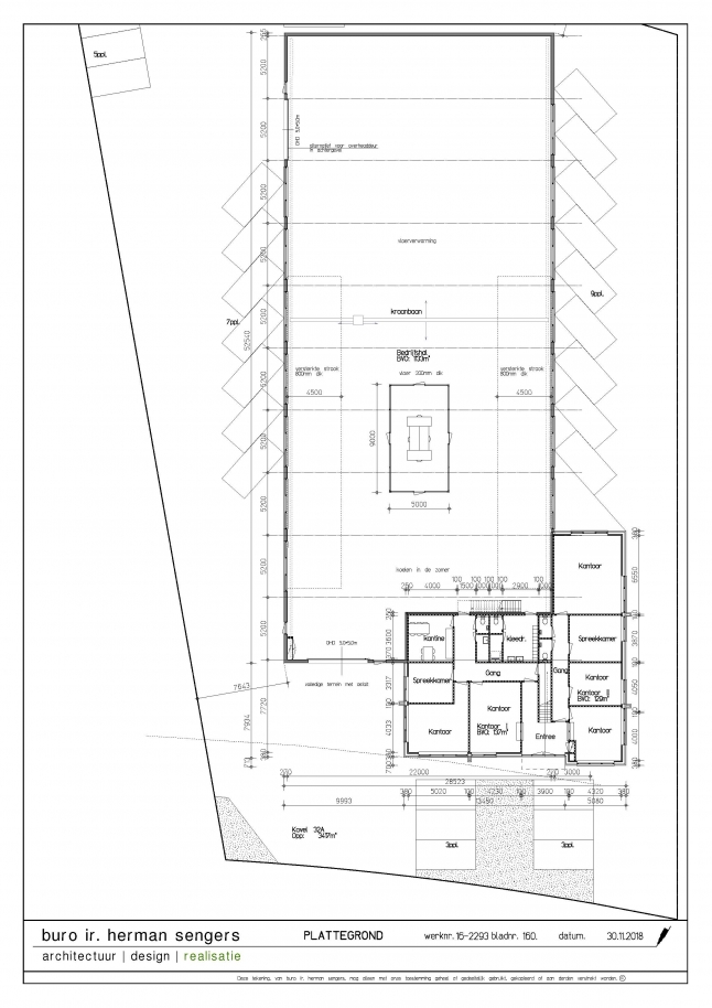
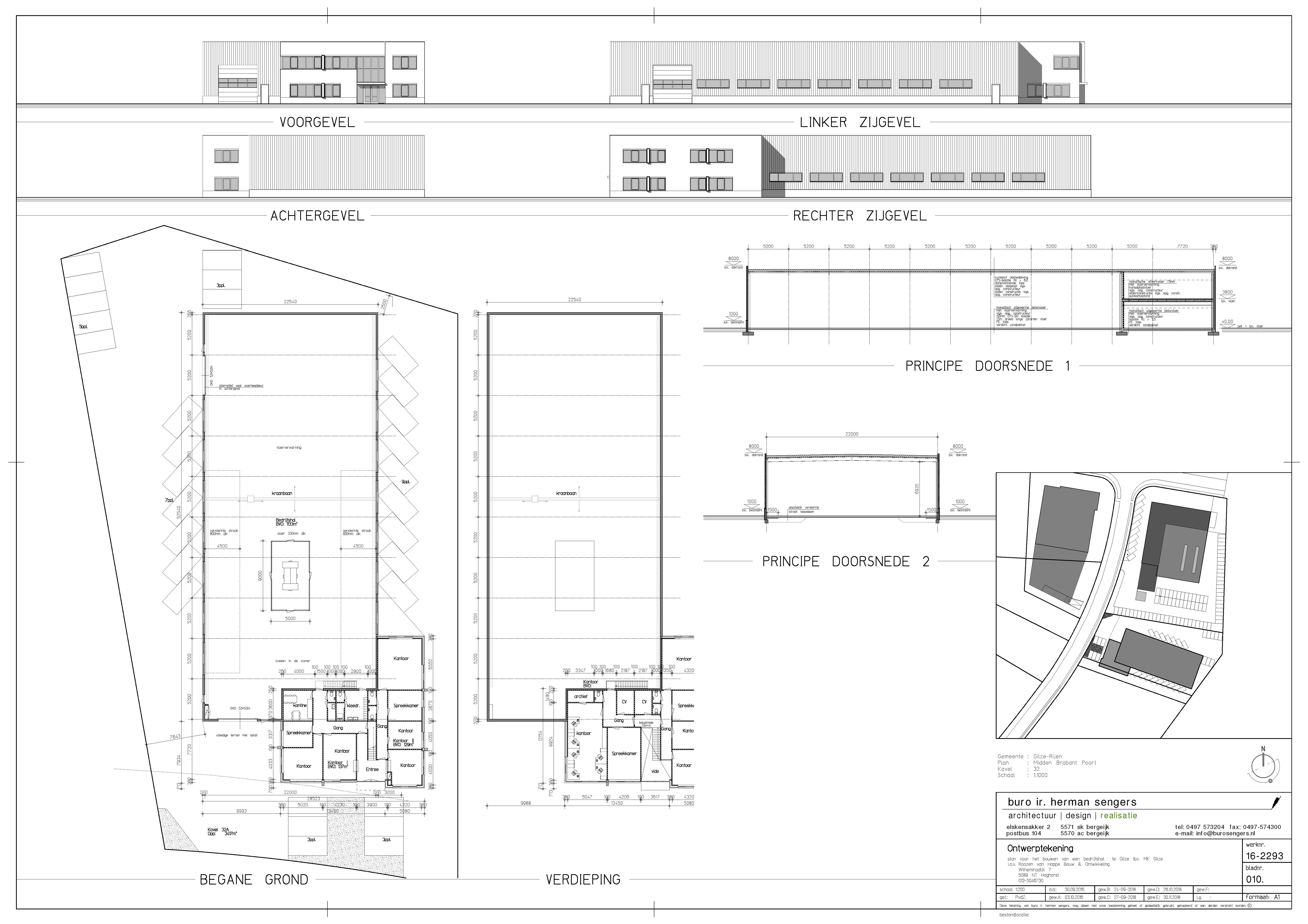
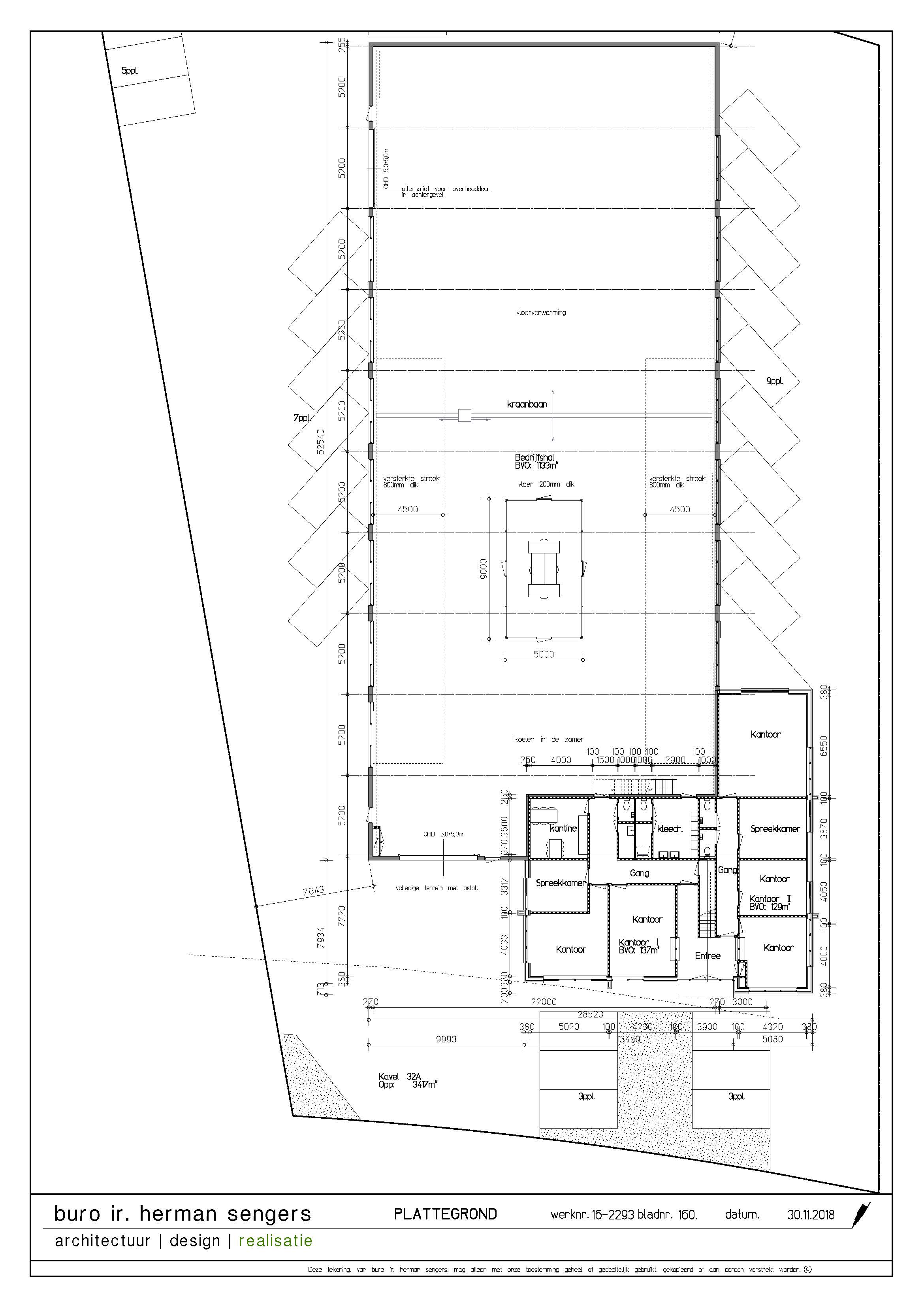
En décembre 2018, un Go a été donné pour l'extension de MK Tooling.
Outre le fait qu'une belle nouvelle machine est en train d'être ajoutée à notre parc de machines, il y aura également un nouveau bâtiment complet. Ce nouveau bâtiment sera créé plus près du MK Gilze. Il est ainsi plus facile d'avoir des lignes courtes entre la salle des enseignes de MK Gilze et les centres d'usinage de MK Tooling. Ce nouveau bâtiment devra être achevé vers l'été 2019.
Ci-dessous, vous pouvez voir les premiers dessins du nouveau bâtiment. Grâce à notre site Web et à nos canaux de médias sociaux tels que Facebook et LinkedIn, nous tiendrons tout le monde intéressé à jour.
